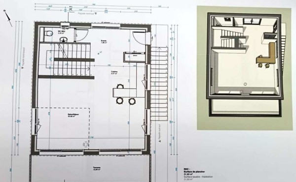
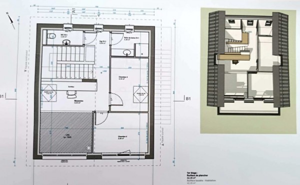
Posé sur un terrain de 576 m2 , dans un quartier offrant une position dominante , sur le secteur des Bas Rupts juste après le Lac , ce beau projet de construction d'une maison typique du secteur ( contemporaine avec son style chalet moderne ) de 136 m2 habitable 4 chambres , séjour mezzanine et terrasse , 2 salles de bains , car port pour les voitures , est actuellement élevé , la toiture va être posée , et ce beau projet sera à achever , il est vendu hors d'eau .
Voir plans et photos
Visites sur chantier , contactez Axel au : 06 95 71 18 92


